GO3 - Syn Interconnection

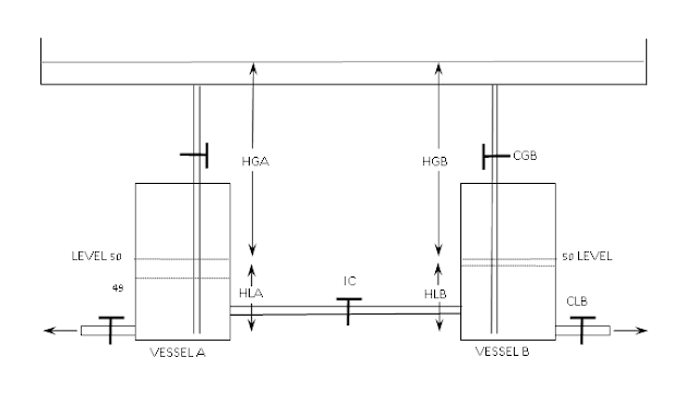
Grid Operation Part 3 System Interconnection Synchronous Better Start With PART-1 Performance of grid system was encouraging. Found to be favorable for its stiffness with increased system bias and inertia. Interconnection with neighboring system is beneficial to both the systems. It facilitates power assistance to each other during distress condition. Also Government of India undertaking like NPC, NTPC, NHPC had established pooled power plants in the region. Interconnection were also necessary to draw share of power from such plants. So interconnections with neighboring systems were established. But with this operation criteria had changed. Review of water supply system will high light the issue. Water supply system setup is modified accordingly. There are two tanks with its inflow and outflow lines as in the figure. Both the tanks are connected at bottom by a pipe line. Initially interconnecting line valve IC is kept closed. In this condition both the systems are ...